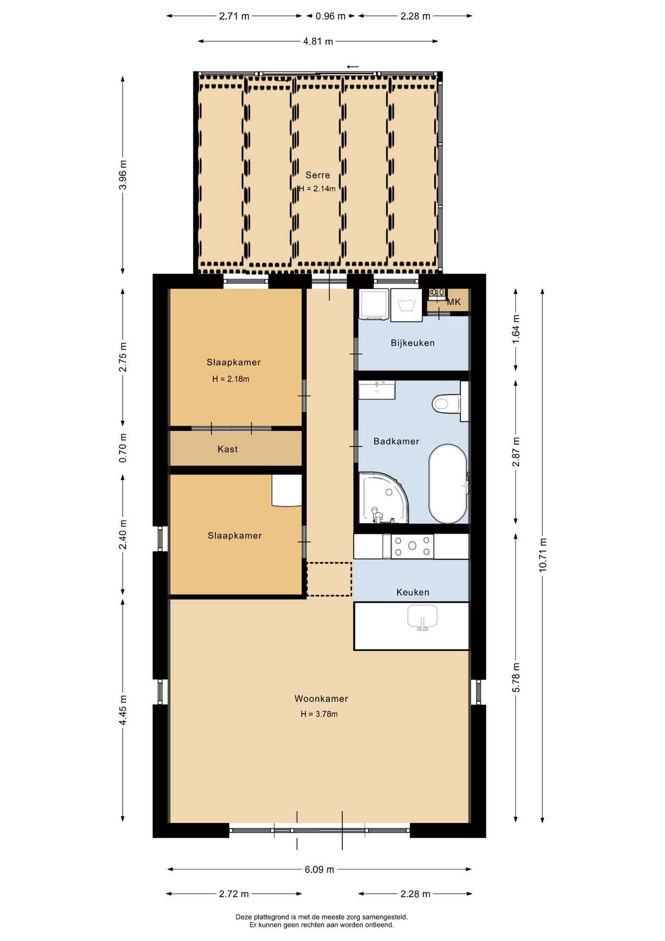
- Woonoppervlakte
- Circa 64 m²
- Perceeloppervlakte
- Circa 345 m²
- Bouwjaar
- Gebouwd in 2021
- Aantal kamers
- 3 kamers (2 slaapkamers)
Na een heerlijke wandeling over het park komen we aan bij Cottage 18, wat direct opvalt is de fijne ligging aan de bosrand, de oprit en de eigen parkeerplek. Wandelen, fietsen en recreëren kan hier vrijwel eindeloos. Op korte afstand vind je de stad Steenwijk met o.a. een treinstation en alle voorzieningen.
* Bouwjaar: 2023
* Kaveloppervlakte 345 m² (erfpacht)
* Woonoppervlakte: 64 m²
* Inhoud: 258 m³
* Externe bergruimte: 6 m²
* Slaapkamers: 2
Stap binnen in de cottage, die door zijn speelse ontwerp en indeling maximaal gebruik maakt van lichtinval. De openslaande deuren in zowel voor- als achtergevel laten de prettige sfeer van binnen moeiteloos overgaan in het bosgevoel van buiten.
De sfeervolle woon/eetkamer met open keuken biedt meer dan genoeg ruimte voor een zithoek en eettafel. De Bruynzeel keuken heeft verschillende apparatuur waaronder een inductie kookplaat.
In het midden van de cottage is de moderne badkamer met ligbad, inloopdouche, toilet en wastafelmeubel, ook zijn hier 2 slaapkamers te vinden. Er is een berging met alle installaties. Via een ladder is de vliering te bereiken.
Aan de achterzijde is tevens een fijne serre met geïsoleerde vloer gecreëerd met uitzicht over de tuin en via een schuifpui toegang tot het terras. Tevens is er een praktische hoek gecreëerd met een buitendouche, wastafel en urinoir.
De achtertuin grenst aan het achterliggende pad en biedt daarnaast vrij uitzicht over achterliggende landerijen.
Er zijn twee volledig nieuw aangelegde terrassen waar je kunt genieten van het buitenleven. Fietsen en tuingereedschap berg je op in de vrijstaande berging.
Bijzonderheden:
* Nette PVC vloer
* Eigen parkeergelegenheid naast de cottage
* Twee slaapkamers
* Airconditioning in serre (ter overname)
* Uitstekend geïsoleerd
* Riet- en bitumendak
* Bosrijke omgeving met vele wandel- en fietsmogelijkheden
* Op fietsafstand van het centrum van Steenwijk
* Bewuste erfpachtconstructie (tot 2071) om de kwaliteit van het landgoed te waarborgen
* Voorkeursrecht van koop parkeigenaar
* Goede verhuurmogelijkheden
* Erfpacht ca € 1700,- per jaar
* Parkkosten ca € 450,- per mnd (incl. gas, water, elektra, afval, Ziggo, parkbeheer)
Ontdek de uitstekende faciliteiten bij Residence de Eese voor een zorgeloos verblijf. Geniet van het openlucht zwembad, sportfaciliteiten, speeltuinen en de leuke dierenweide met alpaca's, emoes, minipaardjes en meer. Het park biedt vermaak en ontspanning voor alle leeftijden, zodat u een onvergetelijke tijd beleeft.
Erfpachtconstructie en Residence de Eese
De uitgifte van kavels in erfpacht verbinden de eigenaren van de recreatieobjecten en de eigenaar van de ondergrond (erfverpachter) voor zeer lange tijd. De erfverpachter is in dit geval ook de exploitant van de verhuur en verantwoordelijk voor de uitstraling van het park. In het Move dossier hebben wij een aparte erfpachtbrochure beschikbaar met veelgestelde vragen.
Omgeving
Geniet van een onvergetelijke tijd bij Residence de Eese, een sfeervol vakantiepark gelegen in het prachtige Overijssel. Vanuit uw knusse vakantieaccommodatie stapt u direct de bosrijke omgeving in, waar u kunt genieten van de frisse buitenlucht en de rustgevende natuur. Deze unieke locatie in de Kop van Overijssel biedt u het beste van meerdere provincies, waaronder het nationale park Weerribben-Wieden en de charmes van plaatsen als Giethoorn en Frederiksoord.
Overdracht
- Vraagprijs
- € 249.500 k.k.
- Status
- Verkocht
- Aanvaarding
- In overleg
- Permanente bewoning
- Permanente bewoning is niet toegestaan
Bouw
- Object type
- Bungalow, vrijstaande woning
- Soort bouw
- Bestaande bouw
- Bouwjaar
- 2021
- Soort dak
- Samengesteld dak bedekt met riet
Oppervlakte en inhoud
- Woonoppervlakte
- 64 m²
- Perceeloppervlakte
- 345 m²
- Inhoud
- 258 m³
- Overige inpandige ruimte
- 19 m²
- Externe bergruimte
- 6 m²
- Gebouwgeb. buitenruimte
- 19 m²
Indeling
- Aantal kamers
- 3 kamers (2 slaapkamers)
- Aantal badkamers
- 1 badkamer
- Badkamervoorzieningen
- Ligbad, toilet, douche, wastafel
- Aantal woonlagen
- 1 woonlaag
- Voorzieningen
- Mechanische ventilatie, tv-kabel, airconditioning
Energie
- Energielabel
- B
- Energielabel registratie
- 18-10-2023
- Isolatie
- Volledig geïsoleerd, eco bouw, driedubbel glas
- Verwarming
- Cv-ketel, vloerverwarming geheel
- Warm water
- Cv-ketel
- Cv ketel
- Hr combiketel gas gestookt uit 2022 (eigendom)
Buitenruimte
- Ligging
- Aan bosrand, aan park, aan rustige weg, in bosrijke omgeving
- Tuin
- Achtertuin, voortuin, zijtuin, zonneterras
- Afmetingen achtertuin
- 135 m² (10 meter diep en 13.5 meter breed)
- ligging tuin
- Gelegen op het zuidoosten en bereikbaar via achterom
Bergruimte
- Schuur / berging
- Vrijstaande houten berging
- Voorzieningen
- Voorzien van elektra
Garage
- Soort garage
- Geen garage
Parkeergelegenheid
- Soort parkeergelegenheid
- Openbaar parkeren, op eigen terrein
Energieverbruik in De Bult
Energielabel deze woning
Energielabel B
Publicatie energielabel: 18-10-2023
Stroomverbruik per jaar
(Gemiddelde vrijstaande woning in De Bult)
Gasverbruik per jaar
(Gemiddelde vrijstaande woning in De Bult)
* Cijfers zijn afkomstig van het CBS en bedoeld als indicatie en kunnen verschillen voor deze woning
Indicatie hypotheeklasten
Eigen inleg:
Spaargeld / overwaarde
Rente:
Laagste 10-jaars rente
Laagste 10-jaars rente
2,76% - Centraal Beheer Groen... - NHG
2,96% - Centraal Beheer Groen... - 80%
Laagste 20-jaars rente
3,19% - Centraal Beheer Groen... - NHG
3,31% - Centraal Beheer Groen... - 80%
Laagste 30-jaars rente
3,34% - Centraal Beheer Groen... - NHG
3,47% - Centraal Beheer Groen... - 80%
Hypotheek:
Bruto maandlasten: € 0 p/m
Netto maandlasten: € 0 p/m
Hoe berekenen we dit?
Het rentepercentage is gebaseerd op de laagste 10-jaars vaste rente voor één hypotheekdeel. De vermelde rente (2.76% met NHG) is gecontroleerd op 26-06-2025. Deze berekening is gebaseerd op een annuïteitenhypotheek die volledig wordt afgelost, waarbij de maandlasten gedurende de gehele looptijd gelijk blijven. De werkelijke rente en netto maandlasten kunnen variëren, afhankelijk van uw persoonlijke situatie en de hypotheekverstrekker. Raadpleeg een financieel adviseur voor een nauwkeurige berekening en advies. Aan deze berekening kunnen geen rechten worden ontleend; het dient enkel als indicatie.
Documentatie
Kadastrale kaart
Leefomgeving
Kadaster
BAG uittreksel
Brochure
Plattegronden PDF
Bezoek onze website
Bezichtiging
Bod uitbrengen
Waardebepaling
Zoekopdracht
Alles downloaden
Zonnegrenzen bekijken
Op de kaart
Inwoners in De Bult
Cijfers voor postcodegebied 8346
- Totaal aantal inwoners
- 320 inwoners
- Mannen
- 53%
- Vrouwen
- 47%
Inwoners in De Bult
Cijfers voor postcodegebied 8346
- tot 15 jaar
- 11%
- 15 tot 25 jaar
- 9%
- 25 tot 35 jaar
- 22%
- 45 tot 65 jaar
- 31%
- 65 en ouder
- 27%
Huishoudens in De Bult
Cijfers voor postcodegebied 8346
- Eenpersoons zonder kinderen
- 51%
- Meerpersoons zonder kinderen
- 26%
- Huishoudens zonder kinderen
- 77%
Huishoudens in De Bult
Cijfers voor postcodegebied 8346
- Huishoudens met één kind
- 9%
- Huishoudens met meerdere kinderen
- 14%
- Huishoudens met kinderen
- 23%
Woningen in De Bult
Cijfers voor postcodegebied 8346
- Woningen voor 1945
- 25%
- Woningen tussen 1945 en 1965
- 17%
- Woningen tussen 1965 en 1975
- 8%
- Woningen tussen 1975 en 1985
- 8%
- Woningen tussen 1985 en 1995
- 1%
Woningen in De Bult
Cijfers voor postcodegebied 8346
- Woningen tussen 1995 en 2005
- 8%
- Woningen tussen 2005 en 2015
- 8%
- Woningen na 2015
- 1%
- Huurwoningen
- 10%
- Koopwoningen
- 90%
Overige in De Bult
Cijfers voor postcodegebied 8346
- Gemiddelde WOZ waarde
- € 455.000,-
- Personen onder de 65 met uitkering
- 11%
Overige in De Bult
Cijfers voor postcodegebied 8346
- Adressen per km²
- 101
- Stedelijkheid (schaal 1 op 5)
- 20%
Zandbergen Makelaardij
Indien u vragen heeft of u wilt een bezichtiging inplannen, dan kunt u gebruik maken van het formulier hiernaast. Er zal daarna op korte termijn contact met u worden opgenomen.
Egginklaan 2 - 4
7971 CA, Havelte
0521 - 340 043 info@zandbergenmakelaardij.nl www.zandbergenmakelaardij.nlContact opnemen
Over ons
Een huis kopen of verkopen is geen alledaagse gebeurtenis. Het vraagt om goede voorbereiding en begeleiding. Bij Zandbergen Makelaardij sta je er niet alleen voor. Ons team – bestaande uit Gerben (NVM Register Makelaar), Rik (NVM Makelaar), Annemieke (binnendienst) en Martine (Assistent Makelaar) – staat voor je klaar om je met vakkennis en enthousiasme te helpen.
Wij zijn lokaal geworteld in de regio Meppel, Westerveld en omgeving. Je komt ons tegen bij sportverenigingen, op het voetbalveld of tijdens een wandeling door de mooie natuurgebieden in Drenthe en Overijssel. Ook op maatschappelijk vlak zijn we actief: we ondersteunen lokale sportclubs en werken graag samen met ondernemers uit de regio.
Zandbergen Makelaardij is opgericht in 2004. Sindsdien hebben we talloze mensen geholpen bij het vinden of verkopen van hun woning. Onze kennis blijft actueel dankzij regelmatige bijscholing. Bovendien zijn we lid van de NVM, waarbij Gerben Zandbergen een leidende rol vervult als voorzitter van de afdeling Drenthe.
Ben je op zoek naar een makelaar die de regio kent, betrokken is én staat voor kwaliteit? We maken graag kennis met je!
Nieuwste reviews
-
Witteltermade 6
Als ik weer een makelaar nodig zou hebben, bel ik ze weer! Correcte en plezieige samenwerking, rustig en deskundig. Wist mijn huis in goede...
-
De Schure 30
Zeer prettige en deskundige samenwerking.Alles verliep vlot .Ik vind deze beoordeling voldoende!!!
-
Weegbree 46
Handig klantendossier waarin je de voortgang kon volgen. Korte lijntjes via WhatsApp en altijd (mobiel) bereikbaar. Wij hebben het als erg p...